Free account required
38
Free account required
$1,499,900 Sale
Listed 71 days ago
48 Garner Road W
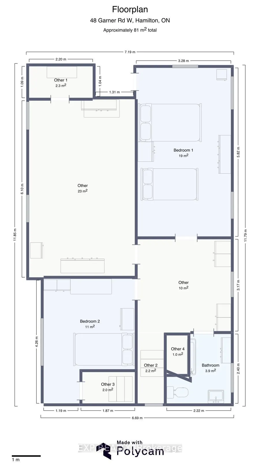
· 3
· 2
· 3
· 1500-2000
Listing History
Buy/Sell/Terminated/Expired listing history for 48 Garner Road W
Key Facts
Key facts for 48 Garner Road W
Property Type
House, 2-Storey
Parking
Detached 3 garage, 3 parking
MLS #
X12311115
Size
1500-2000 sqft
Basement
Unfinished
Listed on
2025-05-28
Lot size
210 x 536.35
Tax
$3,988 /yr
Days on Market
133
Approximate Age
51-99
Maintenance Fee
-
Description
Welcome to Your Slice of Countryside Paradise - Right in the Heart of Ancaster! Nestled on 3 acres, this enchanting property offers the best of both worlds: country living with all the convenience of city amenities just minutes away. Surrounded by towering mature trees, you'll feel a world apart-yet... you're only 5 minutes from schools, grocery stores, parks, and highway access. At the heart of the property stands a charming 3-bedroom, 1.5-bath home full of warmth and potential. With solid bones and timeless character, this home is ready for your personal touches. Whether you're looking to modernize or embrace its cozy charm, it's the perfect canvas to create your dream retreat. Out back, you'll find a storybook red barn that's as practical as it is picturesque. With 3 garage bays and a full workshop, there's room for all your tools, toys, and weekend projects. Hobbyists, collectors, or those dreaming of a creative studio-this space has endless potential. Whether you're sipping coffee on the porch, or planning your next renovation project, this property offers the rare chance to live immersed in nature without sacrificing everyday convenience. Don't miss this opportunity to own a truly special piece of Ancaster-where peaceful living meets modern accessibility. **INTERBOARD LISTING: CORNERSTONE - HAMILTON-BURLINGTON**
Similar Properties (No results)
Courtesy of: EXP REALTY